Каталог товаров
Сравнение
0
Избранное
0
Поиск
Поиск
Поиск
Посмотреть все результаты
Личный кабинет
0
Каталог товаров
Бытовая техника
Посмотреть все товары
Встраиваемая техника
Посмотреть все товары
Варочные панели
Духовые шкафы
Посудомоечные машины
Кухонные вытяжки
Техника для дома
Посмотреть все товары
Стиральные машины
Сушильные машины
Парогенераторы
Электровеники
Пылесосы
Швейные машины
Утюги
Тепловые пушки
Роботы-пылесосы
Приборы для укладки волос
Электронные уничтожители насекомых
Оверлоки и распошивальные машины
Машинки для удаления катышков
Ирригаторы
Вертикальные пылесосы
Вентиляторы
Техника для кухни
Посмотреть все товары
Яйцеварки
Электрошашлычницы
Электрогрили
Электрические чайники
Морозильники и лари
Холодильники
Хлебопечки
Фритюрницы
Фильтры и умягчители для воды
Тостеры
Сэндвичницы
Сушилки для овощей и фруктов
Соковыжималки
Плиты
Пароварки
Настольные плиты
Мясорубки
Мультиварки
Мороженицы
Мини-печи, электропечи, ростеры
Миксеры
Микроволновые печи
Ломтерезки
Кухонные комбайны
Кухонные весы
Кофемолки
Кофеварки и кофемашины
Йогуртницы
Измельчители пищевых отходов
Измельчители
Винные шкафы
Вафельницы
Вакуумные упаковщики
Блинницы
Блендеры
Аэрогрили
Климатическая техника
Посмотреть все товары
Банные печи
Электрокамины
Теплые полы
Радиаторы отопления
Осушители воздуха
Обогреватели и тепловые завесы
Метеостанции
Кондиционеры
Воздухоочистители и увлажнители
Водонагреватели
Аксессуары для крупной бытовой и встраиваемой техники
Посмотреть все товары
Фильтры для пылесосов
Фильтры для кухонных вытяжек
Пылесборники
Насадки для пылесосов
Аксессуары и запчасти для кофеварок и кофемашин
Аксессуары и запчасти для бритв, триммеров и эпиляторов
Товары для дома и дачи
Посмотреть все товары
Хозяйственные товары
Посмотреть все товары
Салфетки
Чистящие средства для дома
Сушилки для обуви
Сушилки для белья
Кашпо и горшки для растений
Гладильные доски
Текстиль и постельное белье
Посмотреть все товары
Одеяла
Наматрасники
Садовая мебель
Расходные материалы
Посмотреть все товары
Принадлежности для перфораторов и отбойных молотков
Принадлежности для культиваторов и мотоблоков
Аксессуары для моек высокого давления
Посуда, кухонная утварь
Посмотреть все товары
Хлебницы
Чайные и кофейные сервизы
Чайники, кофейники
Термосы и термокружки
Тарелки и салатники
Столовые сервизы
Столовые приборы
Посуда для хранения
Посуда для напитков
Посуда для запекания
Посуда для готовки
Кухонные принадлежности
Кухонные приборы
Крышки для микроволновой печи
Крышки для кастрюль и сковородок
Банки и бутылки
Освещение
Посмотреть все товары
Люстры и светильники
Люстры
Лампочки
Новый год
Посмотреть все товары
Новогодние елки
Новогодние гирлянды
Новогодние венки
Надувные фигуры
Елочные игрушки и новогодние украшения
Дача, сад и огород
Посмотреть все товары
Триммеры
Снегоуборщики
Садовый инструмент и инвентарь
Садовые тачки и хозяйственные тележки
Садовые опрыскиватели и распылители
Садовые измельчители
Полив и орошение
Парники и теплицы
Ножи и садовые ножницы
Мотобуры и бензобуры
Мойки высокого давления
Мини-тракторы
Лестницы
Кусторезы и высоторезы
Культиваторы и мотоблоки
Клининговое оборудование и уборочная техника
Газонокосилки
Воздуходувки
Вертикуттеры и аэраторы
Благоустройство территории
Биотуалеты
Бассейны
Бытовая химия
Посмотреть все товары
Стиральные порошки
Мыло
Средства для мытья посуды
Электроника
Посмотреть все товары
Умный дом
Электронные книги
Рации
Планшеты
Парковочные радары
Кронштейны
Гаджеты
Посмотреть все товары
Умные часы и браслеты
Сменные ремешки и браслеты
Очки виртуальной реальности
Видеонаблюдение
Посмотреть все товары
Считыватели
Камеры CCTV
Видеорегистраторы наблюдения
Видеодомофоны
Аксессуары
Посмотреть все товары
Чехлы для электронных книг
Пульты ДУ
GPS-трекеры
3D очки
Аккумуляторные батарейки
GPS навигаторы
Строительство и ремонт
Посмотреть все товары
Электрика
Посмотреть все товары
Розетки, выключатели
Реноваторы
Затирочные машины
Электростанции
Электрика и свет
Посмотреть все товары
Электропаяльное оборудование
Стройматериалы
Посмотреть все товары
Метизы и крепежные изделия
Шпатлевка
Строительный инструмент
Посмотреть все товары
Малярные установки
Электрорубанки
Электроотвертки и шуруповерты
Электродрели и дрели-шуруповерты
Электро- и бензорезы
Электрические краскораспылители
Штроборезы (бороздоделы)
Шлифовальные машины
Циркулярные, сабельные пилы
Фрезы
Фрезеры
Угловые шлифмашины (болгарки)
Строительные электроножницы
Степлеры (гвоздезабиватели)
Сверлильные станки
Сверла
Промышленные фены
Пневмошуруповерты
Пистолеты
Пилы
Перфораторы
Отбойные молотки
Ножницы по металлу
Монтажные пилы
Механические степлеры и гвоздезабиватели
Лобзики
Краскопульты
Граверы
Бензо- и электропилы
Станки
Посмотреть все товары
Циркулярные станки (распиловочные)
Стружкоотсосы
Плиткорезы
Металлообрабатывающие станки
Деревообрабатывающие станки
Сварочное оборудование
Посмотреть все товары
Плазменная резка и плазморезы
Сварочные маски
Сварочные аппараты
Аппараты для контактной сварки
Сантехника
Посмотреть все товары
Экраны для ванн
Унитазы
Умывальники
Трубы, фитинг
Сушилки для рук
Смесители
Системы инсталляций
Пьедесталы для раковины
Полупьедесталы
Полотенцесушители
Кухонные мойки
Клавиши и системы смыва
Душевые трапы
Душевые системы (панели и гарнитуры)
Душевые поддоны
Дозаторы и диспенсеры
Биде
Аксессуары для моек
Аксессуары для ванной и туалета
Ручной инструмент
Посмотреть все товары
Труборезы и ножницы для резки труб
Пассатижи и плоскогубцы
Отвертки
Наборы инструментов
Молотки
Ключи
Зубила
Расходные материалы
Посмотреть все товары
Шлифовальная бумага
Пилки для лобзиков
Пильные полотна для пил
Пильные диски
Отрезные круги и диски
Двигатели
Биты
Распиловочные станки
Помпы
Посмотреть все товары
Мотопомпы
Пневматический инструмент
Посмотреть все товары
Наборы пневмоинструмента
Пневмошлифмашины
Пневмотрещотки
Пневмостеплеры
Пневмогайковерты
Пневматические отбойные молотки
Плитка
Посмотреть все товары
Люки под плитку
Насосы бытовые
Компрессоры
Климатическая техника
Посмотреть все товары
Отопительные системы (котлы)
Измерительный инструмент
Посмотреть все товары
Штанги, штативы, треноги для уровней и дальномеров
Угломеры и уклономеры
Терморегуляторы
Пирометры (инфракрасные термометры)
Нивелиры
Кабельные тестеры
Детекторы металла (проводки)
Дальномеры
Измерительное оборудование
Посмотреть все товары
Мультиметры
Детекторы для поиска скрытых коммуникаций
Заточные станки (точила)
Дровоколы
Грузоподъемное оборудование
Посмотреть все товары
Лебедки
Гидроаккумуляторы и расширительные баки
Вытяжная вентиляция
Вибротехника
Посмотреть все товары
Виброплиты
Бетономешалки
Бензоинструмент
Посмотреть все товары
Бензопилы
Генераторы
Аккумуляторный инструмент
Посмотреть все товары
Аккумуляторы для инструмента
Видеотехника
Посмотреть все товары
Телевизоры
ТВ-антенны
Проекционные экраны
Проекторы
Приемники цифрового ТВ
Кабели для AV-аппаратуры
Информационные панели
Звуковые панели и колонки для телевизора
Домашние кинотеатры
Аксессуары для экшн-камер
Спортивные товары
Посмотреть все товары
Спортивная защита
Эллиптические тренажеры
Теннисные столы
Степперы
Спортинвентарь
Посмотреть все товары
Аксессуары для батутов
Мячи
Батуты
Баскетбольные стойки и щиты
Аксессуары для бодибилдинга и фитнеса
Спортивные шлемы
Скейтборды, лонгборды
Силовые тренажеры
Санки
Самокаты
Роликовые коньки
Гироскутеры
Гантели, гири, штанги
Велотренажеры
Велосипеды и аксессуары
Посмотреть все товары
Инструменты для велосипедов
Аксессуары для велосипедов
Электровелосипеды
Подседельные штыри для велосипедов
Детские велосипеды
Велосипеды
Велонасосы
Велокомпьютеры
Беговелы
Бильярдные столы
Беговые дорожки
Работа и офис
Посмотреть все товары
Электромеханическое оборудование
Посмотреть все товары
Овощерезки, Протирочные машины
Фаст-фуд оборудование
Посмотреть все товары
Коптильни
Торговля и финансы
Посмотреть все товары
Термопринтеры
Сейфы
Оборудование для животноводства и птицеводства
Посмотреть все товары
Кормоизмельчители и измельчители зерна
Вентиляция
Посмотреть все товары
Вентиляционные решетки
Аудиотехника
Посмотреть все товары
Усилители и ресиверы
Умные колонки
ТВ-приставки и медиаплееры
Радиоприемники
Портативная акустика
Музыкальные центры
Диктофоны
Виниловые проигрыватели
Беспроводные и портативные колонки
Акустические системы
Аксессуары для аудиотехники
Посмотреть все товары
Наушники
Микрофоны
Микрофонные стойки
Автомагнитолы
Туризм и отдых
Посмотреть все товары
Шезлонги
Шатры и тенты
Чемоданы и дорожные сумки
Фонари
Туристические коврики
Туристические горелки и плиты
Спальные мешки
Рюкзаки
Палатки
Надувные лодки
Надувная мебель
Посмотреть все товары
Надувные кровати, матрасы, кресла
Мангалы, грили, барбекю
Лодочные моторы
Кемпинговая мебель
Красота и здоровье
Посмотреть все товары
Эпиляторы и женские электробритвы
Электрогрелки, электроодеяла, электропростыни
Электробритвы мужские
Электрические зубные щетки
Фены
Приборы для ухода за кожей
Напольные весы
Машинки для стрижки волос
Массажные кресла
Массажеры
Посмотреть все товары
Гидромассажные ванночки для ног
Маникюрные наборы
Косметика и парфюмерия
Посмотреть все товары
Косметические зеркала
Косметика по уходу за телом
Ванночки для ног
+7(495)109-37-47
+7(495)109-37-47
Отдел продаж
Обратный звонок
Режим работы
Обработка заказов с 09:00 до 19:00 ежедневно
Личный кабинет
Вход
Регистрация
Избранное
0
Сравнение
0
Просмотренные товары
0
О нас
Как заказать
Контакты
Доставка
Политика конфиденциальности
О нас
Как заказать
Контакты
Доставка
Политика конфиденциальности
+7(495)109-37-47
Отдел продаж
Обратный звонок
Режим работы:
Обработка заказов с 09:00 до 19:00 ежедневно
Обратный звонок
Поиск
Посмотреть все результаты
Личный кабинет
Сравнение
0
Избранное
0
0
Корзина
0
₽
пуста
Товары в корзине
Итого:
0
₽
Оформить заказ
Встраиваемая техника
Варочные панели
Духовые шкафы
Посудомоечные машины
Кухонные вытяжки
Встраиваемая техника
Техника для дома
Стиральные машины
Активаторные стиральные машины
Сушильные машины
Парогенераторы
Электровеники
Пылесосы
Строительные пылесосы
Обычные пылесосы
Швейные машины
Утюги
Тепловые пушки
Роботы-пылесосы
Приборы для укладки волос
Электронные уничтожители насекомых
Оверлоки и распошивальные машины
Машинки для удаления катышков
Ирригаторы
Вертикальные пылесосы
Вентиляторы
Техника для дома
Техника для кухни
Яйцеварки
Электрошашлычницы
Электрогрили
Электрические чайники
Морозильники и лари
Холодильники
Хлебопечки
Фритюрницы
Фильтры и умягчители для воды
Тостеры
Сэндвичницы
Сушилки для овощей и фруктов
Соковыжималки
Плиты
Пароварки
Настольные плиты
Мясорубки
Мультиварки
Мороженицы
Мини-печи, электропечи, ростеры
Миксеры
Микроволновые печи
Ломтерезки
Кухонные комбайны
Кухонные весы
Кофемолки
Кофеварки и кофемашины
Йогуртницы
Измельчители пищевых отходов
Измельчители
Винные шкафы
Вафельницы
Вакуумные упаковщики
Блинницы
Блендеры
Аэрогрили
Техника для кухни
Климатическая техника
Банные печи
Электрокамины
Теплые полы
Радиаторы отопления
Осушители воздуха
Обогреватели и тепловые завесы
Метеостанции
Кондиционеры
Воздухоочистители и увлажнители
Водонагреватели
Климатическая техника
Аксессуары для крупной бытовой и встраиваемой техники
Фильтры для пылесосов
Фильтры для кухонных вытяжек
Пылесборники
Насадки для пылесосов
Аксессуары и запчасти для кофеварок и кофемашин
Аксессуары и запчасти для бритв, триммеров и эпиляторов
Аксессуары для крупной бытовой и встраиваемой техники
Выберите категорию
Бытовая техника
Хозяйственные товары
Салфетки
Чистящие средства для дома
Сушилки для обуви
Сушилки для белья
Кашпо и горшки для растений
Гладильные доски
Хозяйственные товары
Текстиль и постельное белье
Одеяла
Наматрасники
Текстиль и постельное белье
Садовая мебель
Расходные материалы
Принадлежности для перфораторов и отбойных молотков
Долото
Буры
Буровые коронки
Принадлежности для культиваторов и мотоблоков
Навесное оборудование для садовой техники
Аксессуары для моек высокого давления
Шланги высокого давления
Струйные трубки
Соединители и коннекторы для шлангов
Расходные материалы
Посуда, кухонная утварь
Хлебницы
Чайные и кофейные сервизы
Чайники, кофейники
Термосы и термокружки
Тарелки и салатники
Столовые сервизы
Столовые приборы
Посуда для хранения
Посуда для напитков
Посуда для запекания
Посуда для готовки
Кухонные принадлежности
Кухонные приборы
Крышки для микроволновой печи
Крышки для кастрюль и сковородок
Банки и бутылки
Посуда, кухонная утварь
Освещение
Люстры и светильники
Люстры
Лампочки
Освещение
Новый год
Новогодние елки
Новогодние гирлянды
Новогодние венки
Надувные фигуры
Елочные игрушки и новогодние украшения
Новый год
Дача, сад и огород
Триммеры
Снегоуборщики
Садовый инструмент и инвентарь
Садовый инвентарь
Ящики для инструментов
Черенки
Тяпки и мотыги
Топоры
Ручные культиваторы
Рукоятки
Плодосборники
Лопаты
Корнеудалители
Грабли
Вилы
Вилки посадочные
Буры садовые
Садовые тачки и хозяйственные тележки
Садовые опрыскиватели и распылители
Садовые измельчители
Полив и орошение
Системы капельного полива
Катушки и тележки для шланга
Системы автоматического полива
Поливочные шланги
Дождеватели, разбрызгиватели, распылители
Парники и теплицы
Ножи и садовые ножницы
Мотобуры и бензобуры
Мойки высокого давления
Мини-тракторы
Лестницы
Кусторезы и высоторезы
Культиваторы и мотоблоки
Клининговое оборудование и уборочная техника
Электрошвабры и полотеры
Электровеники и стеклоочистители
Щетки и швабры
Средства для биотуалетов
Совки
Промышленные пылесосы
Подметальные машины
Пароочистители и отпариватели
Моющие и чистящие средства
Газонокосилки
Воздуходувки
Вертикуттеры и аэраторы
Благоустройство территории
Гамаки
Химия для бассейнов
Садовые качели
Аксессуары для бассейнов
Биотуалеты
Бассейны
Дача, сад и огород
Бытовая химия
Стиральные порошки
Мыло
Средства для мытья посуды
Бытовая химия
Выберите категорию
Товары для дома и дачи
Умный дом
Электронные книги
Рации
Планшеты
Парковочные радары
Кронштейны
Гаджеты
Умные часы и браслеты
Сменные ремешки и браслеты
Очки виртуальной реальности
Гаджеты
Видеонаблюдение
Считыватели
Камеры CCTV
Видеорегистраторы наблюдения
Видеодомофоны
Видеонаблюдение
Аксессуары
Чехлы для электронных книг
Пульты ДУ
GPS-трекеры
3D очки
Аксессуары
Аккумуляторные батарейки
GPS навигаторы
Выберите категорию
Электроника
Электрика
Розетки, выключатели
Электрика
Реноваторы
Затирочные машины
Электростанции
Электрика и свет
Электропаяльное оборудование
Электрика и свет
Стройматериалы
Метизы и крепежные изделия
Гвозди
Шпатлевка
Стройматериалы
Строительный инструмент
Малярные установки
Электрорубанки
Электроотвертки и шуруповерты
Электродрели и дрели-шуруповерты
Электро- и бензорезы
Электрические краскораспылители
Штроборезы (бороздоделы)
Шлифовальные машины
Циркулярные, сабельные пилы
Фрезы
Фрезеры
Угловые шлифмашины (болгарки)
Строительные электроножницы
Степлеры (гвоздезабиватели)
Сверлильные станки
Сверла
Промышленные фены
Пневмошуруповерты
Пистолеты
Пилы
Перфораторы
Отбойные молотки
Ножницы по металлу
Монтажные пилы
Механические степлеры и гвоздезабиватели
Лобзики
Краскопульты
Граверы
Бензо- и электропилы
Строительный инструмент
Станки
Циркулярные станки (распиловочные)
Стружкоотсосы
Плиткорезы
Металлообрабатывающие станки
Деревообрабатывающие станки
Станки
Сварочное оборудование
Плазменная резка и плазморезы
Сварочные маски
Сварочные аппараты
Аппараты для контактной сварки
Сварочное оборудование
Сантехника
Экраны для ванн
Унитазы
Умывальники
Трубы, фитинг
Сушилки для рук
Смесители
Системы инсталляций
Пьедесталы для раковины
Полупьедесталы
Полотенцесушители
Кухонные мойки
Клавиши и системы смыва
Душевые трапы
Душевые системы (панели и гарнитуры)
Душевые поддоны
Дозаторы и диспенсеры
Биде
Аксессуары для моек
Аксессуары для ванной и туалета
Сантехника
Ручной инструмент
Труборезы и ножницы для резки труб
Пассатижи и плоскогубцы
Отвертки
Наборы инструментов
Молотки
Ключи
Зубила
Ручной инструмент
Расходные материалы
Шлифовальная бумага
Пилки для лобзиков
Пильные полотна для пил
Пильные диски
Отрезные круги и диски
Двигатели
Биты
Расходные материалы
Распиловочные станки
Помпы
Мотопомпы
Помпы
Пневматический инструмент
Наборы пневмоинструмента
Пневмошлифмашины
Пневмотрещотки
Пневмостеплеры
Пневмогайковерты
Пневматические отбойные молотки
Пневматический инструмент
Плитка
Люки под плитку
Плитка
Насосы бытовые
Компрессоры
Климатическая техника
Отопительные системы (котлы)
Климатическая техника
Измерительный инструмент
Штанги, штативы, треноги для уровней и дальномеров
Угломеры и уклономеры
Терморегуляторы
Пирометры (инфракрасные термометры)
Нивелиры
Кабельные тестеры
Детекторы металла (проводки)
Дальномеры
Измерительный инструмент
Измерительное оборудование
Мультиметры
Детекторы для поиска скрытых коммуникаций
Измерительное оборудование
Заточные станки (точила)
Дровоколы
Грузоподъемное оборудование
Лебедки
Грузоподъемное оборудование
Гидроаккумуляторы и расширительные баки
Вытяжная вентиляция
Вибротехника
Виброплиты
Вибротехника
Бетономешалки
Бензоинструмент
Бензопилы
Генераторы
Бензоинструмент
Аккумуляторный инструмент
Аккумуляторы для инструмента
Аккумуляторный инструмент
Выберите категорию
Строительство и ремонт
Телевизоры
ТВ-антенны
Проекционные экраны
Проекторы
Приемники цифрового ТВ
Кабели для AV-аппаратуры
Информационные панели
Звуковые панели и колонки для телевизора
Домашние кинотеатры
Аксессуары для экшн-камер
Выберите категорию
Видеотехника
Спортивная защита
Эллиптические тренажеры
Теннисные столы
Степперы
Спортинвентарь
Аксессуары для батутов
Мячи
Батуты
Баскетбольные стойки и щиты
Аксессуары для бодибилдинга и фитнеса
Спортинвентарь
Спортивные шлемы
Скейтборды, лонгборды
Силовые тренажеры
Санки
Самокаты
Роликовые коньки
Гироскутеры
Гантели, гири, штанги
Велотренажеры
Велосипеды и аксессуары
Инструменты для велосипедов
Аксессуары для велосипедов
Электровелосипеды
Подседельные штыри для велосипедов
Детские велосипеды
Велосипеды
Велонасосы
Велокомпьютеры
Беговелы
Велосипеды и аксессуары
Бильярдные столы
Беговые дорожки
Выберите категорию
Спортивные товары
Электромеханическое оборудование
Овощерезки, Протирочные машины
Электромеханическое оборудование
Фаст-фуд оборудование
Коптильни
Фаст-фуд оборудование
Торговля и финансы
Термопринтеры
Сейфы
Торговля и финансы
Оборудование для животноводства и птицеводства
Кормоизмельчители и измельчители зерна
Оборудование для животноводства и птицеводства
Вентиляция
Вентиляционные решетки
Вентиляция
Выберите категорию
Работа и офис
Усилители и ресиверы
Умные колонки
ТВ-приставки и медиаплееры
Радиоприемники
Портативная акустика
Музыкальные центры
Диктофоны
Виниловые проигрыватели
Беспроводные и портативные колонки
Акустические системы
Аксессуары для аудиотехники
Наушники
Микрофоны
Микрофонные стойки
Аксессуары для аудиотехники
Автомагнитолы
Выберите категорию
Аудиотехника
Шезлонги
Шатры и тенты
Чемоданы и дорожные сумки
Фонари
Туристические коврики
Туристические горелки и плиты
Спальные мешки
Рюкзаки
Палатки
Надувные лодки
Надувная мебель
Надувные кровати, матрасы, кресла
Надувная мебель
Мангалы, грили, барбекю
Лодочные моторы
Кемпинговая мебель
Выберите категорию
Туризм и отдых
Эпиляторы и женские электробритвы
Электрогрелки, электроодеяла, электропростыни
Электробритвы мужские
Электрические зубные щетки
Фены
Приборы для ухода за кожей
Напольные весы
Машинки для стрижки волос
Массажные кресла
Массажеры
Гидромассажные ванночки для ног
Массажеры
Маникюрные наборы
Косметика и парфюмерия
Косметические зеркала
Косметика по уходу за телом
Косметика и парфюмерия
Ванночки для ног
Выберите категорию
Красота и здоровье
Строительство и ремонт
Климатическая техника
Отопительные системы (котлы) в Москве
Фильтр
Плитка
Подробно
Компактно
Кол-во:
30
30
60
90
150
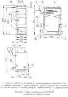
Отопительный котёл NEVA Lux 8224
Вид: газовый
Тип: двухконтурный
Мощность обогрева: 26.7 кВт
Теплообменник: есть
Камера сгорания: закрытая
Расположение: настенный
Площадь обогрева: 240 м2
41 501
₽
Нет в наличии
Быстрый просмотр
Добавить в избранное
Добавить к сравнению
В корзину
Отопительный котёл NEVA Lux 6020T
Вид: газовый
Газ: природный
Мощность обогрева: 34 кВт
Теплообменник: есть
Камера сгорания: закрытая
Расположение: настенный
Тип подогрева горячей воды: проточный
28 153
₽
Нет в наличии
Быстрый просмотр
Добавить в избранное
Добавить к сравнению
В корзину
Отопительный котёл Атем Житомир-3 КС-ГВ-015СН (дымоход вверх, теплообменник нерж.)
Вид: газовый
Тип: двухконтурный
Мощность обогрева: 15 кВт
Камера сгорания: открытая
Расположение: напольный
Площадь обогрева: 150 м2
Тип подогрева горячей воды: проточный
54 181
₽
Нет в наличии
Быстрый просмотр
Добавить в избранное
Добавить к сравнению
В корзину
Отопительный котёл Атем Житомир-3 КС-Г-020СН (дымоход вверх, теплообменник нерж.)
Вид: газовый
Тип: одноконтурный
Мощность обогрева: 20 кВт
Камера сгорания: открытая
Расположение: напольный
Площадь обогрева: 200 м2
Расход газа: 2.46 м3/ч
56 174
₽
Нет в наличии
Быстрый просмотр
Добавить в избранное
Добавить к сравнению
В корзину
еще 9 фото
Отопительный котёл Lavoro Eco M-15 (двухконтурный)
0
₽
Нет в наличии
Быстрый просмотр
Добавить в избранное
Добавить к сравнению
В корзину
Отопительный котёл Arderia E4
Вид: электрический
Тип: одноконтурный
Объем бака: 4.5 л
Мощность обогрева: 3.9 кВт
Расположение: настенный
Площадь обогрева: 40 м2
Дисплей: есть
47 712
₽
Артикул: 2202208
Нет в наличии
Быстрый просмотр
Добавить в избранное
Добавить к сравнению
В корзину
Отопительный котёл Теплодар Куппер ОК-9 (2.0)
43 541
₽
Нет в наличии
Быстрый просмотр
Добавить в избранное
Добавить к сравнению
В корзину
Отопительный котёл NEVA Lux 8224-1
Вид: газовый
Тип: одноконтурный
Газ: сжиженный, природный
Мощность обогрева: 24 кВт
Камера сгорания: закрытая
Расположение: настенный
38 663
₽
Нет в наличии
Быстрый просмотр
Добавить в избранное
Добавить к сравнению
В корзину
Отопительный котёл Ferroli Vitabel F32
Вид: газовый
Тип: двухконтурный
Объем бака: 8 л
Мощность обогрева: 32 кВт
Камера сгорания: закрытая
Расположение: настенный
Площадь обогрева: 320 м2
76 961
₽
Артикул: GCDG8K6A
Нет в наличии
Быстрый просмотр
Добавить в избранное
Добавить к сравнению
В корзину
Отопительный котёл Атем Житомир-5 КНС-3 (3 кВт)
Вид: газовый
Тип: одноконтурный
Мощность обогрева: 3 кВт
Камера сгорания: закрытая
Расположение: настенный
Площадь обогрева: 30 м2
Расход газа: 0.35 м3/ч
29 366
₽
Нет в наличии
Быстрый просмотр
Добавить в избранное
Добавить к сравнению
В корзину
Отопительный котёл Атем Житомир-5 КНС-4 (4 кВт)
Вид: газовый
Тип: одноконтурный
Мощность обогрева: 4 кВт
Камера сгорания: закрытая
Расположение: настенный
Площадь обогрева: 40 м2
Расход газа: 0.42 м3/ч
31 219
₽
Нет в наличии
Быстрый просмотр
Добавить в избранное
Добавить к сравнению
В корзину
Отопительный котёл Лемакс Classic-16
Вид: газовый
Тип: одноконтурный
Мощность обогрева: 16 кВт
Камера сгорания: открытая
Расположение: напольный
Площадь обогрева: 160 м2
Расход газа: 1.9 м3/ч
48 023
₽
Нет в наличии
Быстрый просмотр
Добавить в избранное
Добавить к сравнению
В корзину
Отопительный котёл Ресурс ЭВПМ-6
Вид: электрический
Тип: одноконтурный
Мощность обогрева: 6 кВт
Расположение: настенный
Площадь обогрева: 60 м2
Дисплей: нет
Температура в контуре отопления: 85 °С
10 887
₽
Нет в наличии
Быстрый просмотр
Добавить в избранное
Добавить к сравнению
В корзину
Отопительный котёл Теплодар Куппер ОК15
Вид: твердотопливный
Тип: одноконтурный
Мощность обогрева: 15 кВт
Теплообменник: есть
Камера сгорания: закрытая
Расположение: напольный
Площадь обогрева: 150 м2
48 999
₽
Нет в наличии
Быстрый просмотр
Добавить в избранное
Добавить к сравнению
В корзину
Отопительный котёл Термокрафт R2 12 кВт
Вид: твердотопливный
Тип: одноконтурный
Мощность обогрева: 12 кВт
Расположение: напольный
Площадь обогрева: 120 м2
Дисплей: нет
Высота: 61 см
38 024
₽
Нет в наличии
Быстрый просмотр
Добавить в избранное
Добавить к сравнению
В корзину
Отопительный котёл HAIER GreenLine 1.35 Ti
Вид: газовый
Тип: двухконтурный
Объем бака: 10 л
Мощность обогрева: 36.5 кВт
Камера сгорания: закрытая
Расположение: настенный
Тип подогрева горячей воды: проточный
96 847
₽
Нет в наличии
Быстрый просмотр
Добавить в избранное
Добавить к сравнению
В корзину
Отопительный котёл HAIER GreenLine 1.20 Ti
Вид: газовый
Тип: двухконтурный
Объем бака: 6 л
Мощность обогрева: 20.4 кВт
Камера сгорания: закрытая
Расположение: настенный
Тип подогрева горячей воды: проточный
77 620
₽
Нет в наличии
Быстрый просмотр
Добавить в избранное
Добавить к сравнению
В корзину
Отопительный котёл GTM Classic E100-6
Вид: электрический
Тип: одноконтурный
Мощность обогрева: 6 кВт
Расположение: настенный
Площадь обогрева: 60 м2
Материал теплообменника: сталь
Дисплей: нет
17 182
₽
Нет в наличии
Быстрый просмотр
Добавить в избранное
Добавить к сравнению
В корзину
Отопительный котёл Лемакс Classic-20 138177
50 169
₽
Нет в наличии
Быстрый просмотр
Добавить в избранное
Добавить к сравнению
В корзину
Отопительный котёл Лемакс Prime-MA24
63 022
₽
Нет в наличии
Быстрый просмотр
Добавить в избранное
Добавить к сравнению
В корзину
Отопительный котёл Мозырьсельмаш КС-ТВ-25
81 356
₽
Нет в наличии
Быстрый просмотр
Добавить в избранное
Добавить к сравнению
В корзину
Отопительный котёл BAXI LUNA-3 COMFORT 240 Fi
Вид: газовый
Тип: двухконтурный
Газ: природный
Объем бака: 8 л
Мощность обогрева: 25 кВт
Теплообменник: есть
Камера сгорания: закрытая
113 273
₽
Нет в наличии
Быстрый просмотр
Добавить в избранное
Добавить к сравнению
В корзину
Отопительный котёл BAXI ECO Four 1.24 F
Вид: газовый
Тип: одноконтурный
Газ: природный
Объем бака: 6 л
Мощность обогрева: 24 кВт
Камера сгорания: закрытая
Расположение: настенный
74 304
₽
Нет в наличии
Быстрый просмотр
Добавить в избранное
Добавить к сравнению
В корзину
Отопительный котёл BAXI LUNA-3 1.310 Fi
Вид: газовый
Тип: одноконтурный
Газ: природный
Объем бака: 10 л
Мощность обогрева: 31 кВт
Камера сгорания: закрытая
Расположение: настенный
97 428
₽
Нет в наличии
Быстрый просмотр
Добавить в избранное
Добавить к сравнению
В корзину
Отопительный котёл BAXI ECO Nova 24 F 24 кВт двухконтурный
Вид: газовый
Тип: двухконтурный
Газ: сжиженный, природный
Объем бака: 7 л
Мощность обогрева: 24 кВт
Камера сгорания: закрытая
56 607
₽
Нет в наличии
Быстрый просмотр
Добавить в избранное
Добавить к сравнению
В корзину
Отопительный котёл HAIER TechLine 2.18 Ti
53 963
₽
Нет в наличии
Быстрый просмотр
Добавить в избранное
Добавить к сравнению
В корзину
Отопительный котёл BAXI LUNA-3 COMFORT 1.310 Fi
Вид: газовый
Тип: одноконтурный
Газ: природный
Объем бака: 10 л
Мощность обогрева: 31 кВт
Камера сгорания: закрытая
Расположение: настенный
104 396
₽
Нет в наличии
Быстрый просмотр
Добавить в избранное
Добавить к сравнению
В корзину
Отопительный котёл BAXI LUNA-3 240 Fi
Вид: газовый
Тип: двухконтурный
Газ: природный
Объем бака: 8 л
Мощность обогрева: 25 кВт
Теплообменник: есть
Камера сгорания: закрытая
100 634
₽
Нет в наличии
Быстрый просмотр
Добавить в избранное
Добавить к сравнению
В корзину
Отопительный котёл HAIER TechLine 2.24 Ti
Вид: газовый
Тип: двухконтурный
Объем бака: 6 л
Мощность обогрева: 23.9 кВт
Камера сгорания: закрытая
Расположение: настенный
Площадь обогрева: 239 м2
65 350
₽
Артикул: GE0Q68E08RU
Нет в наличии
Быстрый просмотр
Добавить в избранное
Добавить к сравнению
В корзину
Отопительный котёл HAIER TechLine 1.24 Ti
Вид: газовый
Тип: одноконтурный
Объем бака: 6 л
Мощность обогрева: 23.9 кВт
Камера сгорания: закрытая
Расположение: настенный
Площадь обогрева: 239 м2
64 467
₽
Артикул: GE0Q6EE08RU
Нет в наличии
Быстрый просмотр
Добавить в избранное
Добавить к сравнению
В корзину
←
1
...
9
10
11
12
→
сравнить товары
(0)
Закрыть окно
(Окно закроется через
сек.)
Количество:
1
Перейти в корзину
Сравнение
0
Сравнение
Избранное
0
Избранное
0
Корзина
0
₽
0
0
0
0
×
Заказать обратный звонок
55,52,51,49,56,55,49,102,102,102,98,98,54,97,57,54,56,99,54,57,102,52,50,52,102,98,99,53,97,48,101,51
Нажимая на кнопку, вы даете согласие на обработку своих
персональных данных и соглашаетесь с
политикой конфиденциальности
Спасибо за оставленную заявку!
Наш оператор свяжется с вами в ближайшее время
закрыть